icon-alt
  • qxif-facebook
  • qxif-youtube

SITE SAFETY MANAGEMENT

Whether your project involves a minor façade renovation, a full-scale demolition, or the construction of a new superstructure, our highly skilled team—including Construction Superintendents, Site Safety Coordinators, and Site Safety Managers—will ensure that every phase meets regulatory compliance and maintains the highest safety standards for all workers on-site.

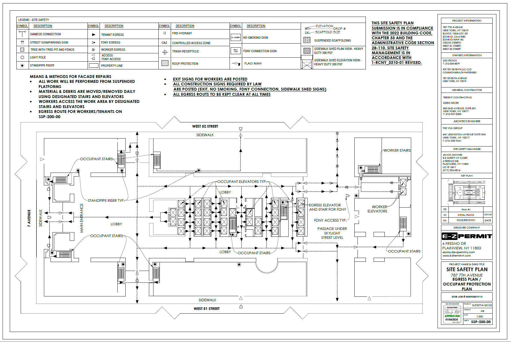
SITE SAFETY PLANS

Our team conducts comprehensive site surveys to assess the specific safety needs of each project. We develop detailed Site Safety Plans tailored to the unique conditions and requirements of the work site, ensuring full compliance with local regulations. Once completed, we submit the plans for approval to the Department of Buildings (DOB), facilitating a smooth approval process and ensuring a safe and compliant work environment before construction begins.

OUR PROJECTS

Add Your Heading Text Here.

Add Your Heading Text Here.

Add Your Heading Text Here.

Add Your Heading Text Here.

Add Your Heading Text Here.

Add Your Heading Text Here.

Add Your Heading Text Here.

Add Your Heading Text Here.